Präzise Stahlbauplanung –
digital und ausführungsnah.
3D-Modelle, Übersichts- und Werkstattzeichnungen sowie Stücklisten für Stahlbauprojekte im Neubau und Bestand.
Für Schlossereien, Metallbauer, Ingenieure, Architekten und Bauherren.
3D-Modellierung
Erstellung präziser 3D-Modelle Ihrer Stahlkonstruktion inklusive Profilen, Anschlüssen und Details.
Bereitstellung in gängigen Formaten wie IFC, STEP, NC und DWG.
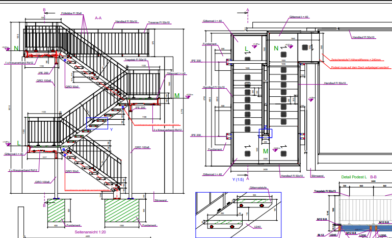
Übersichts-
& Werkstattzeichnungen
Fertigungsgerechte Zeichnungen mit 3D-Ansichten, Details und klarer Bauteildarstellung.
Strukturiert aufbereitet für Werkstatt, Abstimmung und Montage.
Stücklisten
Übersichtliche Stücklisten für Bauteile und Verbindungsmittel.
Mit Gewichtsangaben und strukturierten Bestellgrundlagen.
3D-Punktwolken-Scan
Digitale Bestandserfassung vor Ort durch 3D-Scanning.
Eine präzise Grundlage für Umbauten, Erweiterungen und Planungen im Bestand.
Planung im Bestand
Anpassung digitaler Modelle an die erfasste Bestandssituation.
Für passgenaue Lösungen bei Umbauten, Anschlüssen und Ergänzungen.
Leistungen:
3D-Modellierung
Übersichtszeichnungen
Werkstattzeichnungen
Montagezeichnungen
Stücklisten
3D-Punktwolkenscan
Planung im Bestand
Visualisierungen
Statik in Partnerleistung

Glib Parii - Geschäftsführer
„Gute Planung zeigt sich für mich vor allem in einer sauberen und praktikablen Umsetzung.“






